Андрей Жуков. Подземный Египет: Гиза и Саккара

В марте этого года весь мир облетела сенсационная новость о том, что команда итальянских и шотландских учёных обнаружила под пирамидой Хефрена гигантский подземный комплекс. Исследователи заявили, что смогли сделать это открытие с помощью технологии синтетического апертурного радара (SAR). По полученным аппаратурным данным учёные создали компьютерную модель подземной системы. Согласно этой модели, комплекс состоит из 8 огромных цилиндрических колодцев со спиральными проходами, которые уходят вглубь под пирамиду на 648 метров. Кроме колодцев были обнаружено еще 5 многоуровневых, одинаковых строений с наклонными крышами внутри пирамиды. Каждый цилиндр «обвит» ходами-лестницами, которые ведут к кубическим конструкциям высотой 80 метров. Они расположены еще ниже – вплоть до 2-километровой глубины. Все эти строения связаны системой проходов.

Большинство представителей научного мира отнеслось к такому открытию скептически, прежде всего, по причине ограничений указанной технологии исследования. И это обоснованный подход. Никакие аппаратурные исследования не могут предоставить реальную картину подземного объекта. Это могут сделать только археологи путём непосредственных раскопок. Но разрешение на подобные работы власти Египта, естественно, не дадут. Тем не менее, различные технические методы хотя бы показывают наличие подземных объектов на конкретной глубине. А это тоже ценная информация, хотя и предварительная.
В 2024 году египетские исследователи с привлечением японских специалистов обнаружили срытую полость рядом с пирамидой Хеопса. При этом использовался георадар и метод электрической томографии удельного сопротивления (ERT). Полученная картинка показала, что под хорошо утрамбованной поверхностью – на глубине около 2 метров — расположен тоннель в виде буквы Г, построенный из известняка. Он тянется в одну сторону на 10 метров, в другую – более чем на 15 метров. Тоннель имеет ширину около 2 метров и заполнен песком. Вероятно, он ведет в какое-то потайное помещение, находящиеся ещё ниже – на глубине более 10 метров.

Напротив северо-восточного угла пирамиды Хеопса в известняковом теле плато расположены так называемые «Коридоры испытаний». Они вырублены в скале плато Гиза и довольно точно копируют основные внутренние коммуникации и архитектурные элементы пирамиды Хеопса: нисходящий коридор, горизонтальное ответвление к камере царицы, т. н. плиты Большого Моста, закрывавшие горизонтальный проход, и начало Большой Галереи с её характерным желобом и пандусами по бокам.

При этом имеются существенные и важные отличия. Во-первых, коридоры сделаны гораздо короче (при этом строго выдержан угол их наклонов), во-вторых, имеется вертикальный колодец, идущий с поверхности плато к точке сочленения восходящего и нисходящего коридоров. Историки считают, что данная скальная конструкция была создана для натурных испытаний различных технических аспектов перед строительством самой пирамиды. Например, надёжности запирания восходящего прохода с помощью скольжения вниз каменных пробок, или надёжности последующего запирания этой точки с помощью скольжения вниз по нисходящему коридору дополнительных каменных пробок, опускаемых со стороны входа. Такие объяснения, мягко выражаясь, выглядят наивными. Информации по данной конструкции в общем доступе очень мало. Прежде всего, не ясно, являются ли «Коридоры испытаний» замкнутой конструкцией. Или они имеют отходящие коридоры (проходы, шахты), соединяющие их с более масштабной подземной системой. А это как раз, на мой взгляд, и есть самый важный вопрос.
Эта же проблема связана и с Великим Сфинксом. По скудной информации, которая очень неудобна для официальных египтологов, под статуей Сфинкса находится храмовый комплекс, который соединён подземным туннелем с пирамидами. Эти данные не доступны для широкой научной общественности. И проверить (или даже получить) их крайне затруднительно.

Ещё один уникальный объект на плато Гиза – т.н. Шахта (гробница) Осириса, расположенная около Дороги процессий, ведущей от пирамиды Хефрена к Гранитному храму и сфинксу. Это шахтное сооружение, уходящее вглубь тела плато на глубину 33 м имеет трёхярусную конструкцию. На самом нижнем уровне находится саркофаг, помещённый на искусственный островок 6х6 м и окружённый водой. Он и сегодня полузатоплен, т.е. уровень воды здесь не зависит от сезона и эту воду никак нельзя считать дождевой. Это либо грунтовые воды (из до сих пор действующего подземного источника), либо воды Нила. Но ещё Геродот писал о подземном канале, по которому речные воды подавались под пирамиду Хеопса.

Какой бы скудной ни была информация по этой проблематике, нет никаких сомнений, что под всем комплексом пирамид Гизы существовала (и сейчас существует) сложнейшая подземная гидротехническая система, построенная неизвестно когда и неизвестно при помощи каких технологий.
Несколько больше информации по этой проблеме можно получить в Северной Саккаре, на масштабном комплексе пирамиды Джосера и прилегающих сооружениях. Этот комплекс, на мой взгляд, является ключом к разгадке тайны древней цивилизации, которая предшествовала древнеегипетской.
Сама пирамида Джосера, по официальной версии египтологов, была построена примерно в 2670–2650 года до н. э. при соответствующем фараоне в качестве его усыпальницы (ну а как иначе?) и считается первой египетской пирамидой.

Пирамида Джосера в начале ХХ века
Её постройку приписывают гениальному архитектору Имхотепу, который был первым после царя. В некоторых источниках ему даже приписывается божественное происхождение, по той причине, что обычный человек не мог построить подобное сооружение.
Но здесь возникает закономерный вопрос, продиктованный обычным здравым смыслом. Внутреннее устройство пирамиды Джосера изучено. Она была сооружена в три этапа. Вначале была построена традиционная мастаба, потом над ней возвели четырёхступенчатую пирамиду, а позже (насколько?) поставили окончательный шестиступенчатый вариант пирамиды высотой 60 (или 62) метра.

Возникает наивный вопрос: в чём был гениальный замысел божественного Имхотепа и как он умудрился его осуществить за 20 лет? По логике, чёткий архитектурный план подразумевает одномоментное осуществление «под ключ». В случае с пирамидой Джосера, на мой взгляд, очевидно, что это сооружение перестраивалось десятилетиями и существовало задолго до фараона Джосера (если это не мифическая фигура).
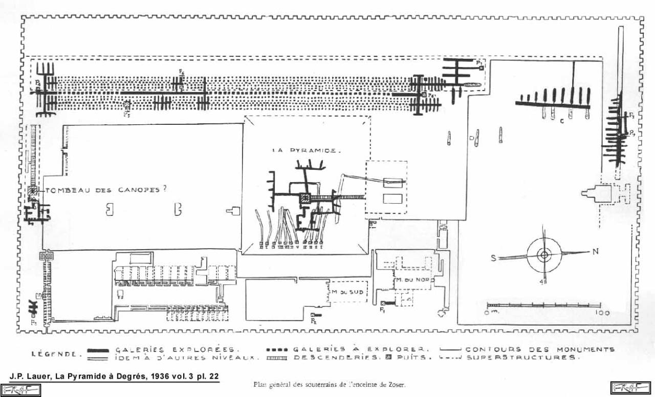
Впрочем, это тема для отдельной статьи. В рамках текущей проблематики я лишь приведу общедоступные факты. По официальной версии, под пирамидой Джосера существует целая сеть галерей проходов и залов. В официальной реконструкции это выглядит очень стройно и планомерно.


Но во время одной из экспедиций египетский археолог, участвовавший в раскопках пирамиды, предоставил нам несколько планов недавно расчищенных подземных галерей под пирамидой, которые разительно отличаются от официальной реконструкции.


Более того, вся эта подземная сеть коммуникаций выходит далеко за границы самой пирамиды. Как видно на плане многие подземные коридоры на юго-западе комплекса сопровождаются знаком вопроса. Т.е. они не расчищены и археологи не знают, куда они ведут.

К северо-западу от пирамиды Джосера располагается знаменитый Серапиум, как официально считается, подземный некрополь для священных быков. В нём находится 27 гранитных саркофага, вес некоторых превышает 30 тонн.

При этом известняковые своды Серапиума не нарушены. Т.е. саркофаги затаскивали внутрь по подземному коридору, ширина которого всего на пару десятков сантиметров превышает ширину саркофагов.

Центральная галерея Серапиума


Гранитные саркофаги. У некоторых не сохранилось крышек
На схеме (фото 13) под номером 9 обозначен коридор, ведущий в сторону пирамиды Джосера. Сегодня он закрыт решеткой и доступ туда запрещён. Но, по моему убеждению, этот коридор соединяет Серапиум со всем комплексом подземных коммуникаций Северной Саккары (фото 12 слева).
К югу к ограде пирамиды Джосера примыкает пирамида, приписываемая последнему фараону V династии Унасу. Вокруг этого сооружения также расположен обширный комплекс подземных галерей и залов, который, несомненно, включён в общую систему подземных коммуникаций Северной Саккары.

Кроме того, в южной части дворового комплекса пирамиды Джосера расположена так называемая Южная гробница или Гробница каноп. Это шахтная гробница, уходящая на глубину 27 метров. Археологи раскопали прямой подземный коридор, соединяющий эту «гробницу» с нижним ярусом саркофага пирамиды Джосера.


С юга, между пирамидами Джосера и Унаса находится еще пара аналогичных шахтных гробниц, уходящих на ту же глубину. Вероятнее всего, они также должны быть связаны коридорами с общей подземной системой Северной Саккары.
Более того, поскольку данный комплекс расположен недалеко от давно исчезнувшего рукава Нила, французские ученые предположили, что древние египтяне использовали воду, создав гидравлическую систему водяного лифта. Тогда можно утверждать, что комплекс Джосера был соединён подземным каналом с исчезнувшим рукавом Нила, подобно тому, что было создано на плато Гиза.
Таким образом, я могу уверенно предположить, что вся Северная Саккара пронизана сложнейшей сетью подземных коммуникаций и сооружений (залы, кельи и т.п.). И, вероятно (это утверждать однозначно сложно), эта сеть связана с аналогичными подземными системами как Гизы, так и Южной Саккары, где находятся пирамиды царей Джедкара (V династия), Пепи I (VI династия) и других.
В любом случае, объём произведённых подземных работ (то, что сегодня раскопано) потрясает воображение. И трудно предположить, что такие работы могли быть произведены в течение правления двух-трёх фараонов. Мы же не забываем ещё и про надземные сооружения – пирамиды, храмы и т.п.
По моему убеждению, то, что мы узнали о Древнем Египте, это, как говорится, лишь вершина айсберга. Большая часть древних сооружений и коммуникаций расположена под землёй страны Кем. И наверняка специальные подразделения египетской Службы древностей давно занимаются этими вопросами и имеют достаточный объём информации. Однако, эти данные не доступны для общего пользования. Ибо, как говорится «Знание – Сила».

Все фото из открытых источников.
- Андрей Жуков, Подземный Египет, Гиза и Саккара
Leave a reply
Для отправки комментария вам необходимо авторизоваться.


