Мaximus101. Первые арийские города. Что мы о них знаем?

Руины дворца в Северном Гонуре
В конце бронзового века арийские племена продвинулись вглубь полуострова Индостан. При этом исходной точкой их маршрута, определяемой археологически, считается юг Средней Азии. Именно здесь, в древних Бактрии и Маргиане, находился важный центр урбанизации древнего мира. Российским археологом Виктором Сарианиди на юге Туркменистана были открыты крупные городские центры Гонур-Депе, Тоголок, Келлели и другие. Сарианиди предположил, что жители этих центров были носителями арийской (индоиранской) культуры. Что очень похоже на правду, так как характеристики городов, открытой им культуры БМАК (Бактрийско-Маргианский археологический комплекс), широко распространились по всей Азии вместе с другими достижениями арийской (прежде всего, иранской) цивилизации.
Видимо, именно в культуре БМАК зародилось важное представление о форме городских поселений (т.е. укрепленных). Оно было выражено в тексте иранской Авесты, где описывалась «Вара» — протопоселение первочеловека Йимы.
Видевдат:
И ты сделай Вар размером в бег на все четыре стороны и принеси туда семя мелкого и крупного скота, людей, собак, птиц и красных горящих огней. Сделай же Вар размером в бег на все четыре стороны для жилья людей и размером в бег на все четыре стороны для помещения скота.
В переднем округе [Вара] сделай девять проходов, в среднем — шесть, во внутреннем — три. В проходы переднего [округа] принеси семя тысячи мужчин и женщин, среднего — шестисот, внутреннего — трёхсот. Сгони их в Вар золотым рогом и и закрепи Вар дверью-окном, освещающимся изнутри.
Убежище Йимы Вара по форме напоминает правильный квадрат — размером в «бег на все четыре стороны». Здесь также можно добавить, что такую же форму имел «корабль» шумеро-аккадского героя Утнапиштима из «Эпоса о Гильгамеше», который несомненно был прообразом будущего библейского Ноя. Убежище Йимы в Авесте тоже было аналогом ковчега, где люди и животные должны спастись от страшного наводнения.
Эпос о Гильгамеше:
Тот корабль, который ты построишь, очертаньем да будет четырехуголен, равны да будут ширина с длиною.
Почти все укрепленные поселения культуры БМАК в нынешнем Туркменистане имели почти правильную квадратную форму. Прежде всего речь идет о городе Гонур Депе, который Сарианиди считал столицей этой области. Гонур несомненно был дворцовым городом, он имел квадратную форму, где главный элитный комплекс находился в центре этого квадрата и был окружен дополнительной оборонительной стеной. То есть на примере Гонура мы можем увидеть отображение иранской Вары — квадратного укрепленного поселения с несколькими кругами оборонительных стен.

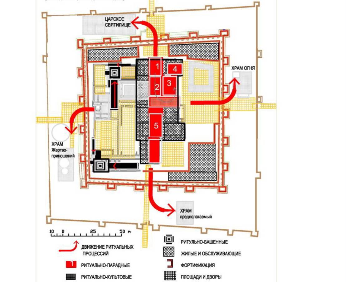
План дворцового (северного) города Гонур-Депе. Артемьев В., Урманова А. Архитектурное исследование Северного Гонура в Туркменистане
Входные проходы в Гонуре находились в центре каждой стороны оборонительной стены. Эта планировка активно применялась в Средней Азии вплоть до средневековья и далее. В частности, ворота по сторонам света присутствовали на плане древнейшей столицы Хорезма — крепости Калалыгыр 1 (5 век. до н.э.)

План фортификации Калалыгыр 1 в Туркменистане. Ворота с трех сторон здесь были дополнительно укреплены пристроенными барбаканами. Толстов С.П. По древним дельтам Окса и Яксарта
Ворота расположенные по сторонам света присутствовали у многих городищ БМАК. Например, такая планировка была у крепости Келллели.

План городища Келлели в Туркменистане. Р.Г. Мурадов Архитектурный феномен в системе первых цивилизаций
В силу такой популярности подобных квадратных планировок поселений в Средней Азии нужно признать ошибочность гипотез о круглом характере авестийской Вары. В свое время И.М.Стеблин-Каменский предложил гипотезу округлости Вары под влиянием открытий российских ученых на Южном Урале, где были найдены круглые поселения бронзового века Аркаим, Синташта и другие. Но как показал замечательный российский археолог С.А.Григорьев круглые планировки городов появились еще в неолите на Ближнем Востоке. В частности, очень близок к Аркаиму комплекс Руджм эль-Хири («каменный вал дикой кошки») или более ранний Демирчиуйюк на западе Малой Азии. В силу этого обстоятельства невозможно признать округлую планировку Аркаима истинно арийской (иранской). В то время как четырёхугольность Варены (Вары), где родился герой Траэтаона, прямо обозначена в тексте Авесты.
Четырнадцатой из мест и областей наилучших Я, Ахура Мазда, сотворил Варэну четырехугольную, где родился Траэтаона, убийца Ажи Дахаки. Видевдат
Упорядоченное квадратное пространство внутри стен стало главной сущностью «парадиза» — иранского рая, по этому плану создавались иранские сады «чахар-баг». Как давно уже признано арийское представление о квадратном священном городе повлияло и на библейскую литературу. Поэтому в Откровении Иоанна Богослова Небесный Иерусалим имел тоже квадратный план.
«Город расположен четвероугольником, и длина его такая же, как и широта. И измерил он город тростью на двенадцать тысяч стадий; длина и широта и высота его равны». Апокалипсис
Макет дворцовой части Гонур-Депе. Музей Мерва.
Правильные квадратные планировки городов массово появляются только в Средней Азии в арийской культуре БМАК. И впоследствии они распространяются почти по всей Азии именно там, где можно предполагать проникновение арийской (в большей степени, иранской) культуры — это Китай, а также Юго-Восточная Азия (прежде всего, Камбоджа). В Китае подобную планировку имели пирамидальные мавзолеи китайских императоров, и с 6 века к ней были приближены планы городов, в частности, речь идет о Чанъани (Дасин) — столице империи Суй. В Камбодже все города и храмы Кхмерской империи имели планы правильных квадратов. Идея подобных планировок попала в Юго-Восточную Азию несомненно через территорию Китая, а не из Индии, как об этом часто пишут. Ибо по неизвестной причине в Индостане подобные планы городов не были распространены. В связи с чем можно предположить, что идея правильной квадратной планировки возникла в ираноарийской среде, а не индоарийской.
Макет Северного Гонура. Вид со стороны искусственного водоема. Музей Мерва.
Интересно, что рядом с укрепленном дворцом в Гонуре были обнаружены значительные по площади бассейны для воды. Они несомненно были необходимы в засушливом климате юга Средней Азии. Но нельзя не отметить, что схожие огромные искусственные озера были известны в столичных городах Китая (Чанъань, Пекин, Кайфын и т.д.), а также искусственные водоемы (бараи) присутствовали во всех городах Кхмерской империи в Камбодже. То есть очень часто правильная квадратная планировка города сочеталась с крупным водоемом. В иранской Авесте есть прямое указание на наличие значительного водоема вместе с Варой.
Видевдат. Авеста:
«Сделай же Вар размером в бег на все четыре стороны для жилья людей и размером в бег на все четыре стороны для помещения скота.
Там воду проведи по пути длиною в хатру [предположительно тысяча шагов], там устрой луга, всегда зеленеющие, где поедается нескончаемая еда, там построй дома, и помещения, и навесы, и загородки, и ограды».
В.И. Сарианиди. И здесь говорил Заратуштра
Наиболее вероятно, что правильные квадратные планировки первых арийских городов были данью культу креста, который был широко распространен в Бактрии и Маргиане еще со времен позднего энеолита. Об этом говорит и крестообразное расположение ворот в центре каждой стороны.
Можно отметить, что планировки строений БМАК совпадают с более ранними пиктограммами и рисунками на керамике Геоксюра. Это говорит о том, что планы арийских городов не были какой-то случайностью. Оно создавались под влиянием устойчивой идеологии, связанной с крестообразными знаками. Скорее всего, это был древнейший культ Богини Матери, ведь крест это ее знак. На территории БМАК было найдено множество женских изображений при почти полном отсутствии мужских. И, как мы знаем, впоследствии образ упорядоченного «парадиза» или «запертого сада» был всегда связан с женскими культами.
В.И. Сарианиди Тайны исчезнувшего искусства Кара-кумов. М. 1967.
Ниже, план Южного Гонура — так называемого «теменоса» (сакрального пространства). Его центрального строение имеет план креста с закруглениями на боках. Подобная форма креста стала во многом основной для индоевропейской культуры. Подобные кресты можно наблюдать даже у ранних славян.
Р.Г. Мурадов Архитектурный феномен в системе первых цивилизаций
Интересно отметить, что арийские города Средней Азии как правило возводились на искусственных платформах из глины или кирпича сырца. В Гонур-Депе эта платформа была незначительна по высоте — не более 1-2 метров. Но ближе к концу бронзового века подобные платформы могли доходить до 10-15 м. высоты. Особенно они стали популярны в культуре Яз (1500—1100 гг. до н. э.), которую общепринято считают иранской.
Как известно, земляные платформы были очень широко распространены в Китае. Китайские специалисты как правило пытаются выдвигать гипотезы о местном происхождении этих платформ. Есть много утверждений, что они существовали на территории Китая еще в неолите. Но по факту можно наблюдать подобную архитектуру не раньше железного века, именно в это время в Китае начинают появляться значительные строения из утрамбованной земли до 10 и более м. высотой и площадью в тысячи кв. метров. Наиболее вероятно, что подобная архитектура пришла в Китай из Средней Азии вместе с идеей об упорядоченных городах.
Общий вид оснований храмового комплекса Тоголок 21.
Можно отметить, что все элитные комплексы внутри стен городов БМАК смещены к северу, и как правило на севере находились главные ворота. Такая планировка кажется несколько странной, так как чаще всего местоположение главного входа было связано с движением солнца, поэтому ворота располагались на востоке, как например, во всех индуистских храмах Индии, или на юге, как это было принято в Китае. Но в тоже время нельзя не отметить, что и дворцовые комплексы Китая часто были сдвинуты к северу, например, в Чанъани (ныне Сиань).
План святилища Тоголок 21 со смещенным к северу центральным комплексом строений. Р.Г. Мурадов Архитектурный феномен в системе первых цивилизаций
Несмотря на то, что внешние стены городов БМАК имели квадратную планировку круглые строения здесь тоже существовали. Первооткрыватель этой культуры Виктор Сарианиди считал их алтарями, хотя скорее мы не знаем их точного назначения. Здесь нужно признать, что круг и квадрат — это правильные фигуры и во многом взаимосвязанные. В Китае круг был символом неба и солнца, а квадрат символизировал землю. Самое раннее круглое в плане укрепленное поселение Дашлы 3 Сарианиди считал святилищем. Сейчас его гипотезы иногда подвергаются критике.
Р.Г. Мурадов Архитектурный феномен в системе первых цивилизаций
К сожалению, почти все города БМАК сохранились лишь на уровне оснований, иногда можно увидеть стены, но не более 2 м. высотой. В связи с этим реконструировать облик этих городов нелегко, как правило их восстанавливают по аналогиям из Ближнего Востока и более поздней среднеазиатской архитектуры, включая средневековую. Что вполне уместно, так как местное зодчество очень архаично и традиционно, даже в начале 20 века в Хиве возводили строения близкие по характеристикам архитектуре бронзового века.
Раскопанная гробница Северного Гонура и четыре огненных алтаря. Фото: Сарианиди В.И., Дубова Н.А., Самурский К.С. Сокровища древней Маргианы.
- Мaximus101, Первые арийские города, Что мы, о них знаем,
Leave a reply
Для отправки комментария вам необходимо авторизоваться.













